
King Suite
By Pizarro did design development and production of the bed framing and furnishings in the king suite.
Vanity
The design of the vanity was provided to us and created design specifications to ensure a seamless manufacturing phase.
Walk in Shower
By Pizarro provided material and millwork for the shower and then passed it onto our contractors for assembly.
Vanity Variation
We provided different finishes for the vanity as per the design of the room.
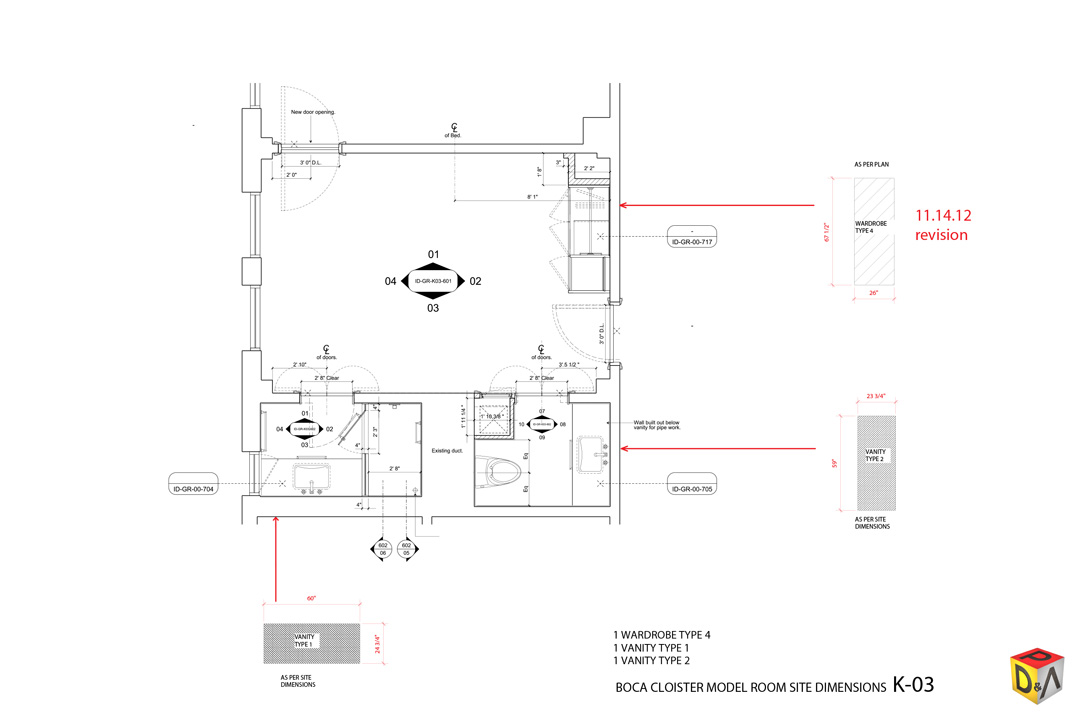
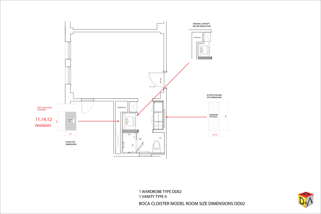
Revision Drawing
Production revisions done to the original drawings provided by architects.
Revision Drawing
Production revisions done to the original drawings provided by architects.
Revision Vanity Drawing
Production revisions done to the original drawings provided by architects.
Revision Vanity Drawing
Production revisions done to the original drawings provided by architects.
Revision Drawing
Production revisions done to the original drawings provided by architects.
Revision Door Drawing
Production revisions done to the original drawings provided by architects.
Revision Drawing
Production revisions done to the original drawings provided by architects.
Revision Vanity Drawing
Production revisions done to the original drawings provided by architects.
Revision Wardrobe Drawing
Production revisions done to the original drawings provided by architects.